作品集

最優秀賞・企業賞大和リース株式会社

作品テーマ
重なる路地・繋がるポケット

小森 魁

京都美術工芸大学

優秀賞

作品テーマ
この指とまれ~
見守り、見守られ生活を紡ぐ住宅~

新原 千宙

京都美術工芸大学

優秀賞・企業賞輝建設株式会社

作品テーマ
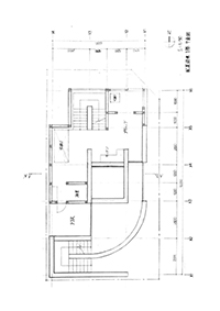
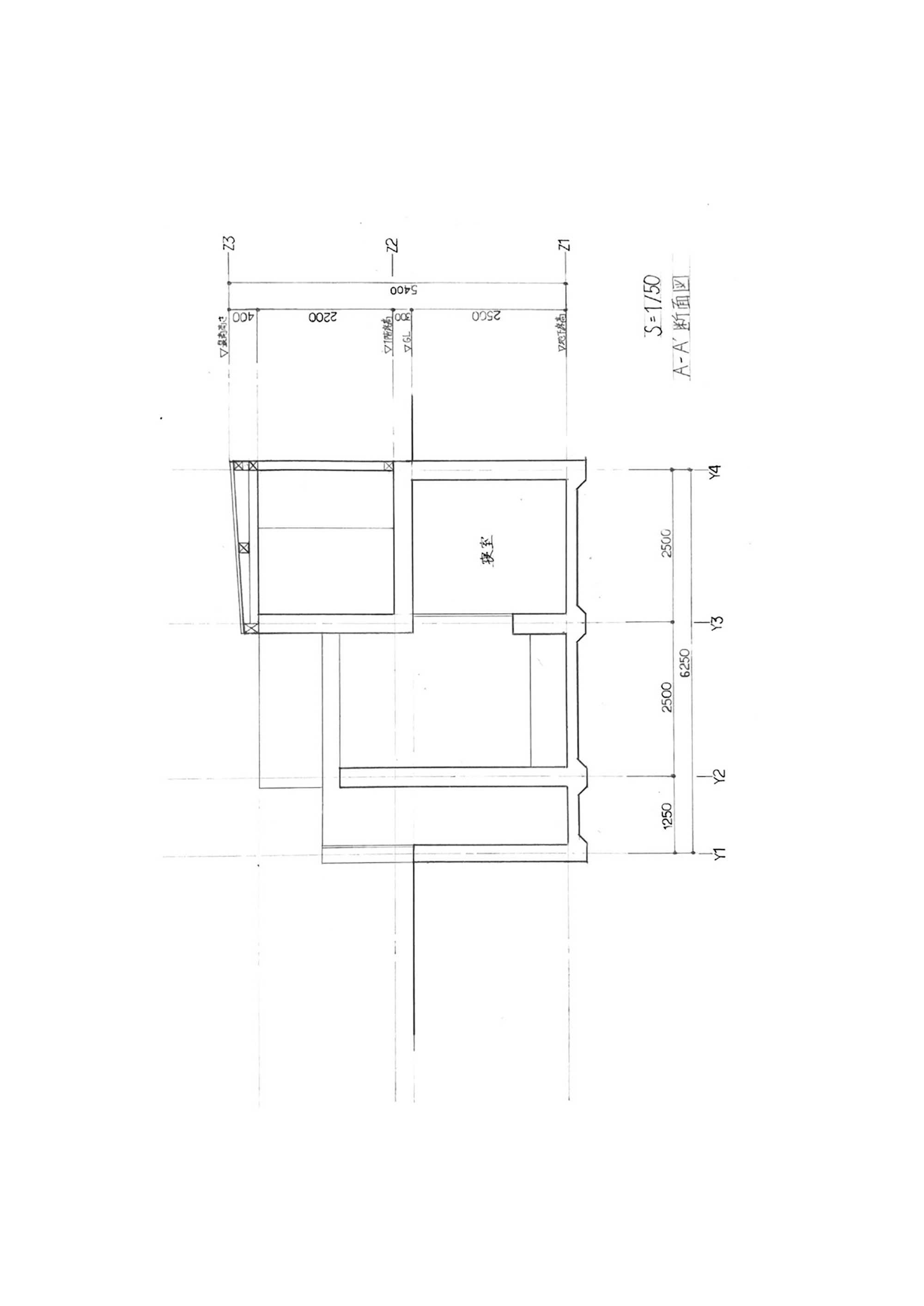
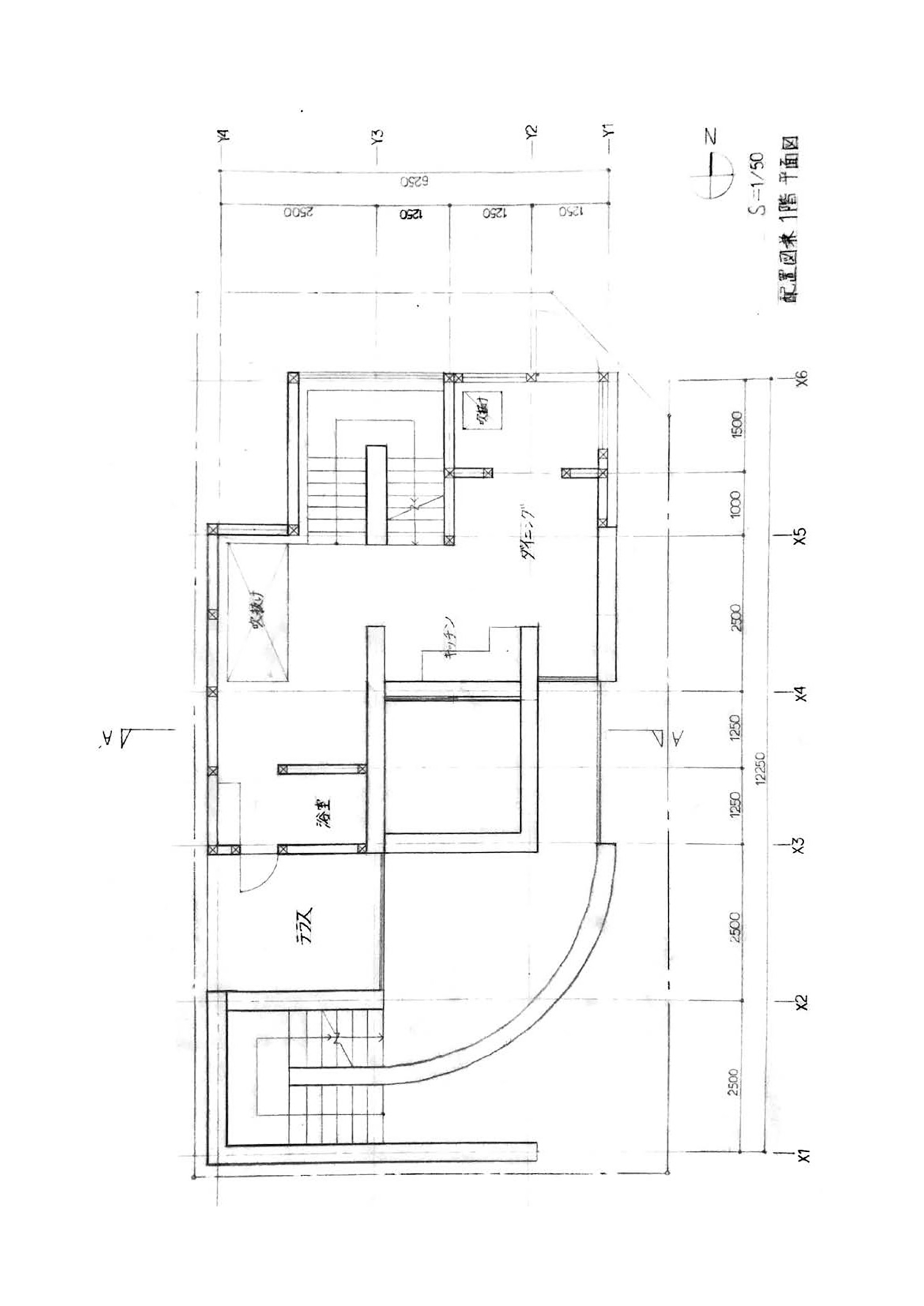
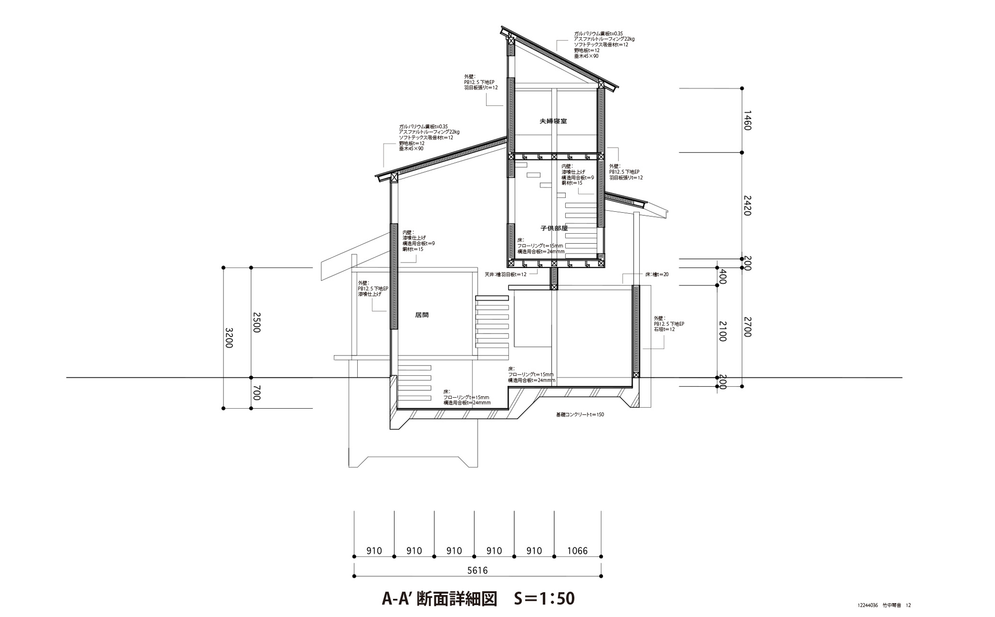
小さな集落からなる家

竹中 琴音

京都芸術大学

奨励賞

作品テーマ
結わうくつろぎ
-ヌックが広げるコミュニティ-

田口 紗衣

大阪市立大学

奨励賞

作品テーマ
染み込み染み出す家

伊藤 佑那

大阪公立大学

奨励賞

作品テーマ
無限

谷川 虎雅

大阪芸術大学

奨励賞

作品テーマ
ソトニワ
-都市部での新しい住み方-

岩井 直哉

関西大学

奨励賞

作品テーマ
3 Lanes House

鄭 佳恵

大阪公立大学

入賞

作品テーマ
都市を着=切る
肌で感じる軌跡
安藤忠雄のTIME’Sを触常者と共に考える

水野 翔太

大阪公立大学

入賞

作品テーマ
野生が集う家
-TIME’S(安藤忠雄設計)から集合住宅へのコンバージョン

安部 航一

大阪公立大学

入賞

作品テーマ
風景と成る建築
風景を切り取る建築

西岡 千緩

京都芸術大学

入賞

作品テーマ
雨どい壁の家

児玉 有希

帝塚山大学

入賞

作品テーマ
個と共同

赤瀬 唯

奈良女子大学

入賞

作品テーマ
記憶箱の家
-記憶から見たもう一つの震災復興-

津川 夕翔音

大阪芸術大学

入賞・企業賞コーラルハウジング株式会社

作品テーマ
小さき他者と暮らす

鈴木 志乃

近畿大学

入賞

作品テーマ
CAT TOWER

竹内 優

関西大学

入賞

作品テーマ
個性をだす。
-人と関わるきっかけ-

松本 幸智子

近畿大学

入賞

作品テーマ
還る家

東村 天

立命館大学

入賞・企業賞積水ハウス㈱

作品テーマ
ガクセイとワーカーのスリット開拓

中田 ゆずの

京都美術工芸大学

入賞

作品テーマ
都市の中のツリーハウス

西岡 洋亮

関西大学

入賞

作品テーマ
ご近所さんは庭から

才賀 咲花

大阪公立大学

企業賞建築資料研究社日建学院梅田校

作品テーマ
翳の羽
~屋根が自然をつなぐ~

斉藤 大地

大阪工業大学

企業賞株式会社総合資格関西本部

作品テーマ
暮らしの箱に命を灯す。

東 彩乃

武庫川女子大学

企業賞株式会社ハマキャスト株式会社吉住工務店

作品テーマ
そばを干す家

寺前 海斗

福井工業高等専門学校

企業賞株式会社山弘

作品テーマ
下から見るか、
横から見るか、
コアラと暮らす家

青木 結香

奈良女子大学

PAGE TOP